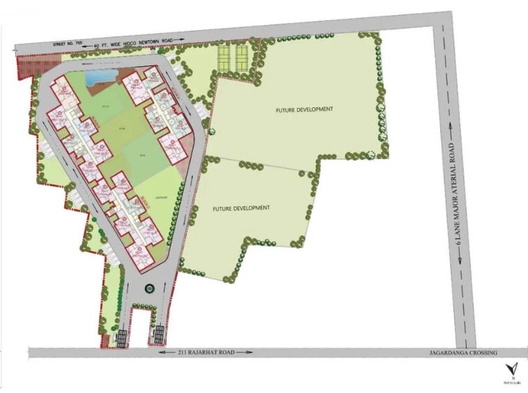
Bhawani Paraiso is a premium gated residential community by the Bhawani Group, strategically located on Rajarhat Main Road, New Town. Spread over 2.65 acres with 70% open space, the project features three high-rise towers (B+G+18) offering 307 thoughtfully designed 2, 3, and 4 BHK apartments.
Key highlights include a three-level clubhouse, a Level-3 swimming pool, and over 40 lifestyle amenities such as a mini-theatre, gym, and yoga lawn. Positioned near Jogardanga More, it offers seamless connectivity to IT hubs, the airport (5.6 km), and top schools. Possession is scheduled for June 2030.
Description:
Well-planned 2 BHK residences designed for modern urban living. Each unit features a spacious living/dining area, a 4'0" wide balcony for cross-ventilation, and vitrified flooring. Includes a dedicated kitchen with utility space and AC points in all bedrooms.
Description:
Luxurious 3 BHK homes featuring efficient layouts to maximize natural light. The plan includes a grand master suite with an attached toilet, high-quality finishes, and expansive living spaces. Residents enjoy premium specifications and access to Level-3 amenity zones.
Description:
The ultimate in luxury living, these 4 BHK apartments offer massive super built-up areas and superior privacy. With multiple balconies, a dedicated servant/utility wash area, and premium vitrified tiling, these units are perfect for larger families seeking high-end urban comfort in New Town.
Description:
The ultimate flagship residence in Bhawani Paraiso, offering expansive super built-up areas and 360-degree ventilation. This layout features a massive living and dining hall, five spacious bedrooms (most with attached toilets), and multiple wide balconies. Designed for multi-generational families, it includes premium finishes, a dedicated servant's quarter/utility zone, and proximity to the Level-4 Club Zone facilities.

24*7 Security
24*7 Water
Adda Zone
Badminton / Tennis Court
Basketball Court
CCTV Surveillance
Children Play Area
Club House
Community Hall
Earthquake Resistant Structure
Fire Fighting Systems
Gymnasium
High Speed Lift
Indoor Games Room
Intercom Facility
Jogging and Strolling Track
Maintenance Staff
Mini Theatre / Amphitheater
Park
Senior Citizen Sit-out
Swimming Pool
Terrace / Garden
Toddlers' Pool
Vaastu Compliant
Yoga & Meditation Area
Please quote property reference
Propserve.in - HZWBRERA/P/NOR/2026/004195
Please quote property reference
Propserve.in - HZWBRERA/P/NOR/2023/000198
Please quote property reference
Propserve.in - HZWBRERA/P/KOL/2023/000716
Please quote property reference
Propserve.in - HZWBRERA/P/KOL/2023/000305
We (WBRERA/A/NOR/2025/000743) are a RERA-registered real estate advisor. All project information and visuals are provided by the respective developer. We strongly advise you to independently verify all details, including the project’s RERA status, with the official authority (https://rera.wb.gov.in) before making any purchase decision. We are not liable for any inaccuracies in the provided information or for any actions taken based upon it. READ MORE…
DOWNLOAD DETAILS
real estate news
Read latest real estate news articles
Bhawani Paraiso is a premium gated residential community by the Bhawani Group, strategically located on Rajarhat Main Road, New Town. Spread over 2.65 acres with 70% open space, the project features three high-rise towers (B+G+18) offering 307 thoughtfully designed 2, 3, and 4 BHK apartments.
Key highlights include a three-level clubhouse, a Level-3 swimming pool, and over 40 lifestyle amenities such as a mini-theatre, gym, and yoga lawn. Positioned near Jogardanga More, it offers seamless connectivity to IT hubs, the airport (5.6 km), and top schools. Possession is scheduled for June 2030.
Description:
Well-planned 2 BHK residences designed for modern urban living. Each unit features a spacious living/dining area, a 4'0" wide balcony for cross-ventilation, and vitrified flooring. Includes a dedicated kitchen with utility space and AC points in all bedrooms.
Description:
Luxurious 3 BHK homes featuring efficient layouts to maximize natural light. The plan includes a grand master suite with an attached toilet, high-quality finishes, and expansive living spaces. Residents enjoy premium specifications and access to Level-3 amenity zones.
Description:
The ultimate in luxury living, these 4 BHK apartments offer massive super built-up areas and superior privacy. With multiple balconies, a dedicated servant/utility wash area, and premium vitrified tiling, these units are perfect for larger families seeking high-end urban comfort in New Town.
Description:
The ultimate flagship residence in Bhawani Paraiso, offering expansive super built-up areas and 360-degree ventilation. This layout features a massive living and dining hall, five spacious bedrooms (most with attached toilets), and multiple wide balconies. Designed for multi-generational families, it includes premium finishes, a dedicated servant's quarter/utility zone, and proximity to the Level-4 Club Zone facilities.

24*7 Security
24*7 Water
Adda Zone
Badminton / Tennis Court
Basketball Court
CCTV Surveillance
Children Play Area
Club House
Community Hall
Earthquake Resistant Structure
Fire Fighting Systems
Gymnasium
High Speed Lift
Indoor Games Room
Intercom Facility
Jogging and Strolling Track
Maintenance Staff
Mini Theatre / Amphitheater
Park
Senior Citizen Sit-out
Swimming Pool
Terrace / Garden
Toddlers' Pool
Vaastu Compliant
Yoga & Meditation Areasimilar properties
Please quote property reference
Propserve.in - HZWBRERA/P/NOR/2026/004195
Please quote property reference
Propserve.in - HZWBRERA/P/NOR/2025/002772
Please quote property reference
Propserve.in - HZWBRERA/P/NOR/2026/003900
Please quote property reference
Propserve.in - HZWBRERA/P/NOR/2025/003217
We (WBRERA/A/NOR/2025/000743) is a RERA-registered advisor. All project information and visuals are provided by the respective developer. We strongly advise you to independently verify all details, including the project’s RERA status, with the official authority (https://rera.wb.gov.in) before making any purchase decision. We are not liable for any inaccuracies in the provided information or for any actions taken based upon it.
Compare listings
ComparePlease enter your username or email address. You will receive a link to create a new password via email.
